1215 Santo Street, Traverse City, MI 49686 (MLS # 1940286)
|
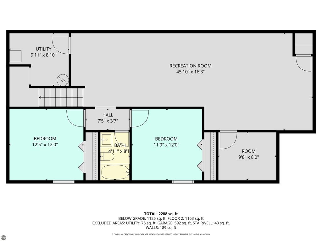
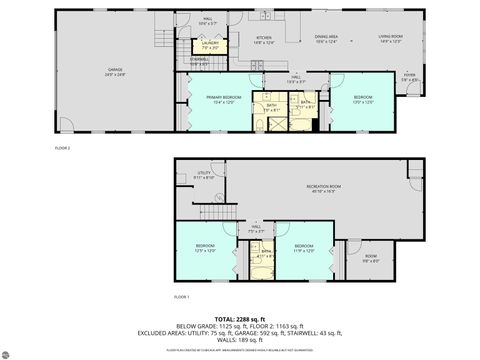
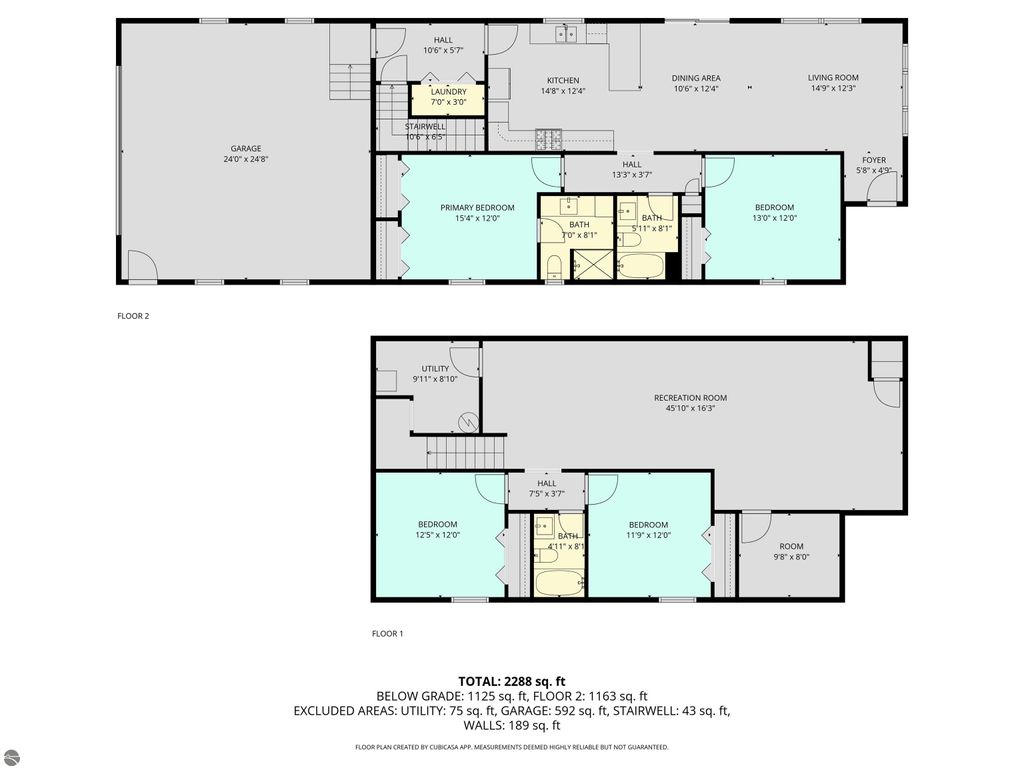
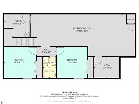
Welcome to 1215 Santo Street, a beautifully crafted 4-bedroom, 3-bath home built in 2022, just minutes from downtown Traverse City. Step inside to an inviting open floor plan highlighted by vaulted ceilings, warm hardwood floors, and abundant natural light. The spacious kitchen features solid surface countertops, stainless steel appliances, and a large island perfect for gatherings. The main floor includes a comfortable primary suite with a private bath, along with two additional bedrooms and a second full bath. Downstairs, a fully finished basement adds even more living space ideal for a home gym, media room, or guest suite. Enjoy your morning coffee on the covered front porch or relax in the fully fenced yard. The attached two-car garage provides convenience and extra storage, and with no HOA, you'll have the freedom to make this home truly your own. Move-in ready and located in a quiet neighborhood close to everything Traverse City has to offer from restaurants and shops to parks and beaches, this home blends comfort, style, and location in one beautiful package.
| DAYS ON MARKET | 27 | LAST UPDATED | 11/6/2025 |
|---|---|---|---|
| TRACT | Hannah & Lay Cos Replat | YEAR BUILT | 2022 |
| GARAGE SPACES | 2.0 | COUNTY | Grand Traverse |
| STATUS | Active | PROPERTY TYPE(S) | Single Family |
| School District | Traverse City Area Public School |
|---|
| ADDITIONAL DETAILS | |
| APPLIANCES | Dishwasher, Dryer, Oven, Range, Refrigerator, Washer |
|---|---|
| BASEMENT | Concrete, Finished, Yes |
| CONSTRUCTION | Frame, Vinyl Siding |
| GARAGE | Yes |
| HEAT | Forced Air |
| INTERIOR | Cathedral Ceiling(s), Entrance Foyer |
| LOT | 6970 sq ft |
| LOT DESCRIPTION | Cleared, Level |
| LOT DIMENSIONS | 41.6 x 165 |
| PARKING | Concrete, Garage Door Opener, Attached |
| STORIES | 1 |
| STYLE | 1 Story, Ranch |
| SUBDIVISION | Hannah & Lay Cos Replat |
| UTILITIES | Cable Available, Natural Gas Available |
| ZONING | Residential |
MORTGAGE CALCULATOR
TOTAL MONTHLY PAYMENT
0
P
I
*Estimate only
| SATELLITE VIEW |
| / | |
We respect your online privacy and will never spam you. By submitting this form with your telephone number
you are consenting for Rick
Matley to contact you even if your name is on a Federal or State
"Do not call List".
Listing provided by REMAX Bayshore - Union St TC
The information in this listing was gathered from third-party sources including the seller. Northern Great Lakes REALTORS® MLS and its subscribers disclaim any and all representations or warranties as to the accuracy of this information.
Copyright © Northern Great Lakes REALTORS ® MLS. All Rights Reserved.
Data last updated: 12/3/25 9:49 AM PST
This IDX solution is (c) Diverse Solutions 2025.
