424 E Front Street #1, Traverse City, MI 49684 (MLS # 1942055)
|
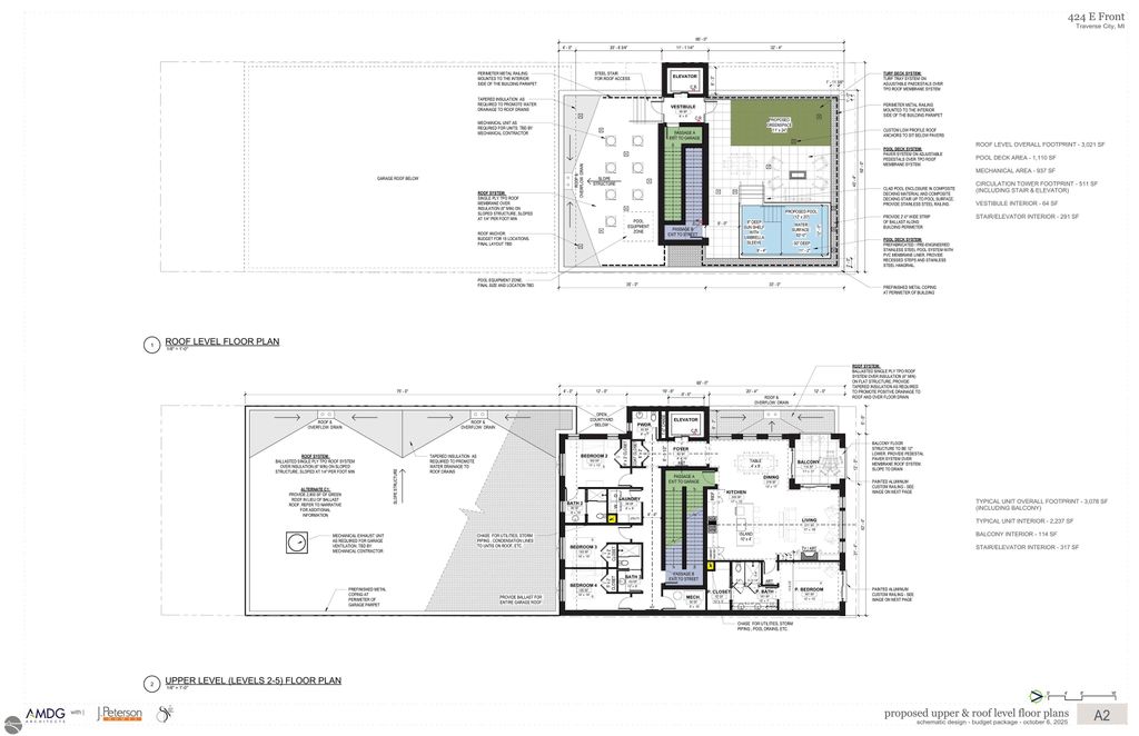
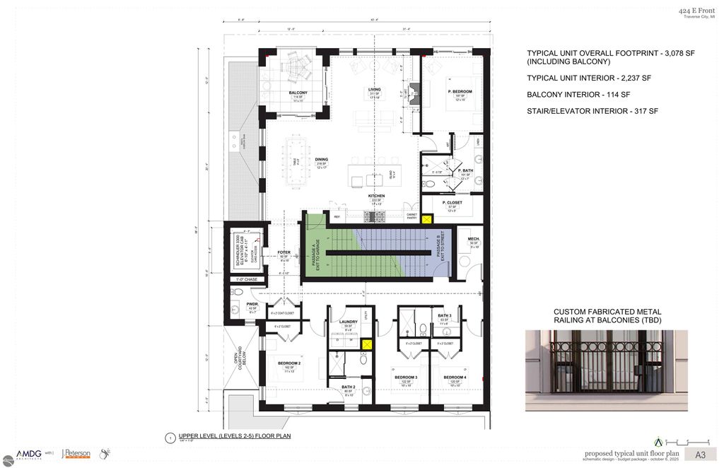
A landmark of timeless elegance, The Ottaway offers an exceptional luxury residential experience in the heart of downtown Traverse City, with a rare opportunity to own a fully furnished, designer-curated residence. Designed by internationally renowned architecture firm AMDG and inspired by the classic charm of Chicago's Gold Coast and New York's Upper East Side, this to-be-built boutique building blends refined sophistication with Northern Michigan tradition. Developed by J. Peterson Homes, The Residences at The Ottaway will offer just four exclusive condominium homes, each meticulously finished with high-end furnishings, lighting, and décor thoughtfully selected to complement the architecture and craftsmanship. Tucked along a quiet stretch of East Front Street, each residence enjoys tranquil views of the Ottaway River and West Bay, with a newly created green space just across the street. Residents also enjoy Traverse City's first rooftop pool, complete with panoramic water views, a spa, dining terrace, fire pit, and lounge. Private elevators open directly into each home's foyer, leading to an open-concept layout with a chef's kitchen featuring Wolf and Sub-Zero appliances, quartz countertops, and custom cabinetry, flowing seamlessly into furnished living and dining spaces and out to a covered porch. The primary suite offers bay views, a Juliette balcony, a walk-in closet, and a spa-inspired bath. Each residence includes three bedrooms, two full baths, a half bath, and in-unit laundry, along with hardwood floors, crown moulding, Kohler fixtures, and custom millwork throughout. Additional amenities include two deeded, heated garage spaces, private storage, and a fitness center. Just one block from downtown's most celebrated dining destinations and moments from sandy beaches and waterfront trails, The Ottaway offers a rare combination of architectural distinction, premier amenities, and an unmatched downtown setting, with only four residences available.
| DAYS ON MARKET | 0 | LAST UPDATED | 2/4/2026 |
|---|---|---|---|
| TRACT | The Residences at The Ottaway | YEAR BUILT | 2026 |
| GARAGE SPACES | 2.0 | COUNTY | Grand Traverse |
| STATUS | Active | PROPERTY TYPE(S) | Single Family |
| ADDITIONAL DETAILS | |
| AMENITIES | Insurance, Maintenance Grounds, Maintenance Structure, Sewer, Snow Removal, Trash, Water |
|---|---|
| CONSTRUCTION | Block, Brick |
| FIREPLACE | Yes |
| GARAGE | Yes |
| HEAT | Fireplace(s), Forced Air, Natural Gas |
| HOA DUES | 7200|Annually |
| INTERIOR | Kitchen Island |
| LOT DESCRIPTION | Level |
| PARKING | Asphalt, Attached |
| SEWER | Public Sewer |
| STYLE | Other |
| SUBDIVISION | The Residences at The Ottaway |
| UTILITIES | Cable Connected |
| VIEW | Yes |
| VIEW DESCRIPTION | Water, Bay |
| WATER | Public |
| ZONING | Residential |
MORTGAGE CALCULATOR
TOTAL MONTHLY PAYMENT
0
P
I
*Estimate only
| SATELLITE VIEW |
| / | |
We respect your online privacy and will never spam you. By submitting this form with your telephone number
you are consenting for Rick
Matley to contact you even if your name is on a Federal or State
"Do not call List".
Listing provided by REMAX Bayshore - West Shore Dr TC
The information in this listing was gathered from third-party sources including the seller. Northern Great Lakes REALTORS® MLS and its subscribers disclaim any and all representations or warranties as to the accuracy of this information.
Copyright © Northern Great Lakes REALTORS ® MLS. All Rights Reserved.
Data last updated: 2/4/26 12:47 PM PST
This IDX solution is (c) Diverse Solutions 2026.
