433 Alexander Road, Vanderbilt, MI 49795 (MLS # 1942194)
|
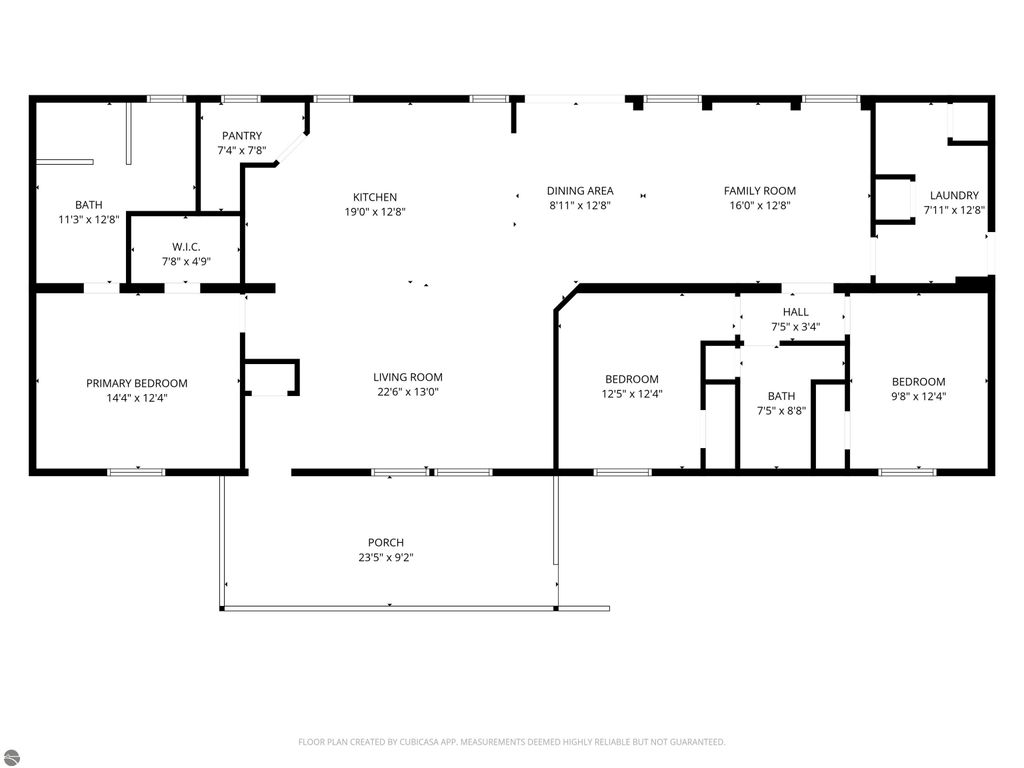
Welcome to 433 Alexander Rd in Vanderbilt, a private Northern Michigan property offering a blend of comfort, recreation, and preserved natural surroundings across approximately 120 acres. The 3-bedroom, 2-bath home features an open split floor plan designed for functionality and everyday living. The open-facing kitchen includes a large central island and flows into the main living area, ideal forgathering and entertaining. A mudroom and laundry area at the entry support active, outdoor lifestyles, while the covered front patio provides a quiet place to enjoy the surrounding landscape. The home is offered furnished for a turnkey opportunity. Confirming the above: Outdoors, the property includes two 10 x 20 storage barns with concrete slab floors, offering space for equipment, recreational gear, or storage. The land consists primarily of protected wetland and natural habitat, creating privacy, wildlife presence, and long-term environmental preservation. The acreage supports recreational uses such as hunting, hiking, trail riding, and wildlife observation, with open areas surrounding the home site for continued enjoyment. Located near established trail systems and Black Bear Golf Club, with additional golf, skiing, and four-season recreation nearby, this property offers a balance of seclusion and accessibility. Ideal as a recreational retreat, private residence, or long-term land holding in Northern Michigan.
| DAYS ON MARKET | 3 | LAST UPDATED | 5/12/2026 |
|---|---|---|---|
| TRACT | None | YEAR BUILT | 2017 |
| COUNTY | Otsego | STATUS | Active |
| PROPERTY TYPE(S) | Single Family |
| PRICE HISTORY | |
| Prior to May 12, '26 | $525,000 |
|---|---|
| May 12, '26 - Today | $499,000 |
| ADDITIONAL DETAILS | |
| AIR | Window Unit(s) |
|---|---|
| AIR CONDITIONING | Yes |
| APPLIANCES | Dishwasher, Dryer, Gas Water Heater, Microwave, Refrigerator, Washer |
| BASEMENT | Crawl Space |
| CONSTRUCTION | Vinyl Siding |
| HEAT | Forced Air, Natural Gas |
| HOA DUES | Annually |
| INTERIOR | Bookcases, Ceiling Fan(s), High Speed Internet, Kitchen Island, Pantry, Walk-In Closet(s) |
| LOT | 120 acre(s) |
| LOT DESCRIPTION | Wooded |
| LOT DIMENSIONS | 1361 x 3989 |
| PARKING | Gravel, None |
| SEWER | Private Sewer |
| STORIES | 1 |
| STYLE | Ranch |
| SUBDIVISION | None |
| VIEW | Yes |
| WATER | Private |
| WATERFRONT DESCRIPTION | Creek |
| ZONING | Residential |
MORTGAGE CALCULATOR
TOTAL MONTHLY PAYMENT
0
P
I
*Estimate only
| SATELLITE VIEW |
| / | |
We respect your online privacy and will never spam you. By submitting this form with your telephone number
you are consenting for Rick
Matley to contact you even if your name is on a Federal or State
"Do not call List".
Listing provided by Key Realty One-TC
The information in this listing was gathered from third-party sources including the seller. Northern Great Lakes REALTORS® MLS and its subscribers disclaim any and all representations or warranties as to the accuracy of this information.
Copyright © Northern Great Lakes REALTORS ® MLS. All Rights Reserved.
Data last updated: 5/15/26 1:40 AM PDT
This IDX solution is (c) Diverse Solutions 2026.
